Details
Gallery
Floor Plans
Contact
2 Crescent Street, Deep River, CT
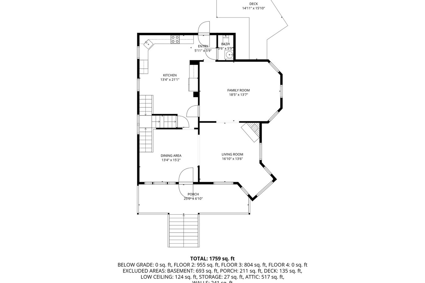
Floor Plans
Floor Plan 1
Floor Plan 2
Floor Plan 3
Floor Plan 4
Contact Us
Kristina Quinones
Realtor
C: 860.227.5542
I'm interested in Video Chat
No
Yes
First Name
Last Name
Email Address
Phone Number
Message
I’m interested in 2 Crescent Street in Deep River.
Request Info